|
|
| ЭЛИТНАЯ
НЕДВИЖИМОСТЬ КРАСНОДАРА |
| ДОМА |  | ВИЛЛЫ |  | КВАРТИРЫ |  | ПЕНТХАУСЫ |  | КОТТЕДЖИ |  | АПАРТАМЕНТЫ | |
| |
|
|
|
| ЭЛИТНАЯ
НЕДВИЖИМОСТЬ КРАСНОДАРА
ДЛЯ ЖИЛЬЯ
&
ИНВЕСТИЦИЙ |
| ПРОДАЕТСЯ
1 КОМНАТНАЯ КВАРТИРА В
ЖК КОМФОРТ КЛАССА
"НСИ-ЮГ
НА ГАРАЖНОЙ" |
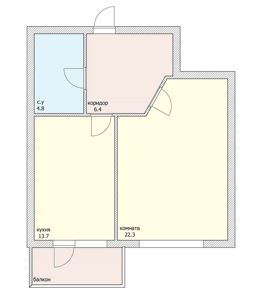
| ХАРАКТЕРИСТИКИ |
ОПИСАНИЕ |
| КОМНАТ |
ПЛОЩАДЬ |
ЭТАЖ |
| 1 |
47 |
11\17 |
|
| •
Номер
объекта:
3013 |
| •
Район: центр |
| •
Безопасность: круглосуточная |
| •
Вид из окна: панорамный на
город |
| •
Ремонт: квартира с ремонтом |
| •
Парковка: подземный паркинг,
гостевая парковка |
| •
Тип недвижимости:
дом комфорт-класса |
| •
Цена 6
900 000
р. |
| •
По
вопросам покупки
квартиры обращаться: |
| •
Контакты:
+7-918-16-18-258 |
 |
WhatsApp |
| •
Почта:
89181618258@mail.ru |
|
Записаться
на просмотр или
забронировать
недвижимость
|
|
| Жилой
комплекс комфорт-класса
"НСИ-ЮГ на
Гаражной". |
|
В
продаже
однокомнатная
квартира с
евроремонтом в
одном из
престижных
районов города -
Фестивальный ,
ремонт делали для
себя ,использовали
только
качественные
материалы , дом
построен одним из
лучших
застройщиков
города "НСИ-Юг".
В шаговой
доступности, все
значимые
социальные
объекты, до центра
5-7 мин где вы в
выходные можете
гулять по ул.Красной
. Дом монолитно-кирпичный
с облагороженной
территорией,
удобной парковкой,
детские,
спортивным
площадками и
многое другое. В
квартире удобное
планировочное
решение, большая
кухня-гостиная,
просторный балкон
при желание можно
переделать под
евро 2-х.км площадь
квартиры
позволяет. При
продаже остается
вся мебель и
техника.
|
| Все
правоустанавливающие
документы в наличии и
подготовлены к продаже. |
|
|
|
|
ФОТО
КВАРТИРЫ |
 |
 |
 |
 |
 |
 |
 |
 |
 |
 |
 |
 |
 |
 |
 |
 |
|
|
|
Район
улицы Красная
– один из самых дорогих и
престижных районов в
Краснодаре. Прекрасная
архитектура, уникальное
расположение, транспортная
доступность делают его
желанным местом для
приобретения недвижимости для
жилья и отдыха.
|
|
|
|
|
|
| Элитная
недвижимость
Краснодара - профильное
направление нашей деятельности. У
нашей компании имеется большая база
предложений, включающая в себя элитные
квартиры Краснодара, элитные дома
Краснодара, пентхаусы в Краснодаре в
различных районов города. Высокий
уровень сервиса, предоставляемый нашим
клиентам, заключается в том, что Вам
потребуется просто описать желаемые
параметры нужной Вам жилой или
коммерческой недвижимости. Наши
специалисты оперативно подберут
подходящие варианты и профессионально
организуют показ объектов элитной
недвижимости в удобное для Вас время. |
| Профессионализм
и опыт наших сотрудников, а также
максимальная ориентированность
компании на интересы клиента создают
надежный фундамент успешности любой
сделки с элитной недвижимостью в
Краснодаре, заключаемой Вами при
содействии с нашей компанией. Работа
агентства стоится на принципах полной
прозрачности и взаимного доверия. Мы
готовы к взаимовыгодному
сотрудничеству для достижения
необходимого результата. |
|
|
|
|
| |